酒店客房设计方案涉及客房种类规划布局
发布人:水木源创设计 发布时间:2022.01.05酒店客房设计方案涉及客房种类规划布局
在外出选择酒店住宿时,时长会有要求选择酒店入住人数,以及酒店客房类别。我们在酒店设计中如何规划酒店客房种类,以及酒店各类客房在酒店所占比重,都需要对酒店的具体情况具体分析做好酒店这类规划,酒店装修设计中对于客房的分类,各个客房设计初所占比例如何。
这里有个客房酒店分类及占比规划分享:整个酒店的客房在130间左右,如何如何把客房进行合理分类。如度假类酒店、民宿酒店、商务酒店在使用人群上的差别,在针对客房的配置配比上都有所差别。
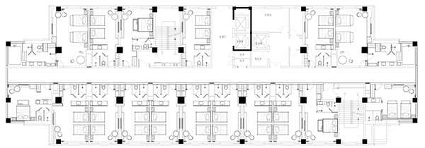
酒店客房设计方案|酒店客房设计平面图
酒店客房设计方案案例客房规划说明:设计中单人间客房设置在90间,而双人间客房在40间左右,分别占比为69%及31%的比例。
标准单床客房:房数为77间占总客房的60%
标准双床客房:客房数为36间占比27%
室内汤池客房:客房数为8间所占比为6%
户外汤池客房:客房数为2占比为2%
豪华户外汤池客房:客房数为1占比为1%
总统套房客房:客房数位2间占比为3%
家庭亲子汤池客房:客房数为4所占总比的3%
酒店设计对酒店客房规划与酒店客人有关,可以根据市场调研情况做相应调整。
标签:酒店客房设计、酒店客房设计方案、酒店客房设计平面图
提示:成都水木源创酒店装饰设计有限公司,专业从事精品酒店装修设计,商务酒店设计,度假酒店设计,温泉主题酒店设计,情侣主题酒店设计,星级酒店设计,民宿酒店设计,各类酒店宾馆的方案设计。
上一篇:民宿在发展的路上靠什么走下去 下一篇:设计酒店包含哪些方面
分享这篇文章:
涉及业务
BUSINESS SCOPE
-
【品牌策划】 Brand planning
-
【室内设计】 Interior design
-
【软装设计】 Soft decoration design
-
【规划设计】 Planning design
水木源创机构设置
-
【园林规划事务所5所】 Office 5 Landscape Planning Office
-
【商业综合体事务所6所】 Office 6 Commercial Complex Office
-
【酒店设计事务所1所】 Office 1 Hotel Design Office
-
【地产设计事务所2所】 Office 2 Realty Design Office
-
【别墅设计事务所3所】 Office 3 Villa Design Office
-
【软装设计事务所4所】 Office 4 Decoration Design Office