酒店大堂设计会有怎样空间布局功能赋能
发布人:水木源创 发布时间:2021.07.19酒店大堂设计会有怎样空间布局功能赋能
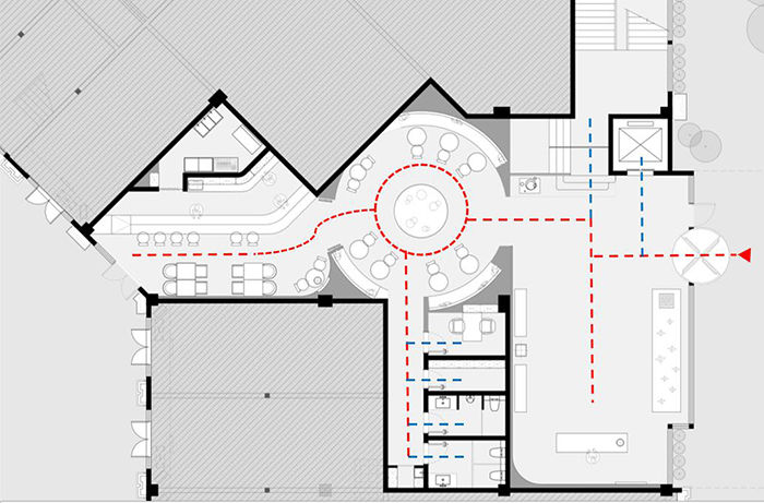
酒店的大堂是酒店在修建内接待客人的第一个空间,也是使客人对酒 店产生第一印象的当地。在酒店规划中,只依靠资料和装饰语言来表达规划的规划师是没有开展的,而这种错误也最简单在规划大堂的时候产生。酒店规划,应该是一种特定日子质量和现代交际环境的创造者,从这个意义上说,他或她既要不断堆集大量的体验,又要懂得这类工作涉及到的一切设计细节。
一、酒店入口
酒店大堂规划是酒店空间规划的重点区域,它是客人来往的必经之地,大堂的首要区域为入口、总服务台、歇息区、公共洗手间等。大堂是酒店对外展现的橱窗,大堂形象也就成为酒店形象的浓缩与升华。酒店入口规划作用强调给客人以第一视觉冲击,同时让客人感到尊重礼遇。酒店入口及门厅也是酒店形象的标志,对品牌营销非常重要。它们的风格与酒店空间全体风格是共同的,大致分为现代式风格、庭院式风格、古典式风格、棚架式风格等。
二、总服务台
酒店总服务台装饰资料的性能上多为经久耐用而又不失华贵,因为其使用频率高,因而原料为高档硬木、大理石、花岗岩、高性能的聚酯化合物居多。色彩上以黑、棕灰色居多,给客人以可信赖的感觉。酒店总服务台是酒店对外服务的窗口和中心枢纽,在大堂中,方位最为夺目杰出,规划得好坏,资料的质感直接影响着酒店的形象。
三、歇息区
酒店歇息区规划首要依据其功用来决议的,歇息区的首要功用是客人往来酒店时的等候、歇息、或约见店外人士时的需求,也是旅游团队的活动集散场所,所以规划上它要求舒适,相对不受外界搅扰。歇息区的全体色彩大方、富丽。对酒店规划者来说,大堂可能是规划工作量最大,也是规划含金量最 高的空间。
标签:酒店大堂设计、精品酒店装修、空间功能布局
提示:成都水木源创酒店装饰设计有限公司,专业从事精品酒店装修设计,商务酒店设计,度假酒店设计,温泉主题酒店设计,情侣主题酒店设计,星级酒店设计,民宿酒店设计,各类酒店宾馆的方案设计。
-
【品牌策划】 Brand planning
-
【室内设计】 Interior design
-
【软装设计】 Soft decoration design
-
【规划设计】 Planning design
-
【园林规划事务所5所】 Office 5 Landscape Planning Office
-
【商业综合体事务所6所】 Office 6 Commercial Complex Office
-
【酒店设计事务所1所】 Office 1 Hotel Design Office
-
【地产设计事务所2所】 Office 2 Realty Design Office
-
【别墅设计事务所3所】 Office 3 Villa Design Office
-
【软装设计事务所4所】 Office 4 Decoration Design Office