攀枝花新中式民宿酒店设计说明
发布人:水木源创设计 发布时间:2019.11.08新中式民宿酒店怎么设计好?大城市的快节奏让许多人的心情变得很烦躁。趁着周末去周边度个假放松一下心情。许多游者住宿选择上是选择当地比较有特色的民宿,而不是高档的酒店。民宿代表着一种生活方式。许多旅游景点的农村将自家的房子改造成为民宿,民宿不是设计一个类似于酒店的设计,而是设计一种当下生活的态度。下面水木源创设计分享一套新中式民宿酒店设计案例,民宿设计师可谓将这个作品设计得行云流水,既有现代化的居住功能又不失中式古典的传统韵味。
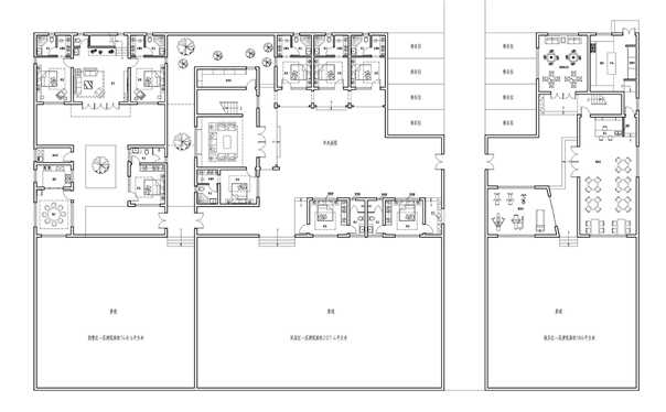
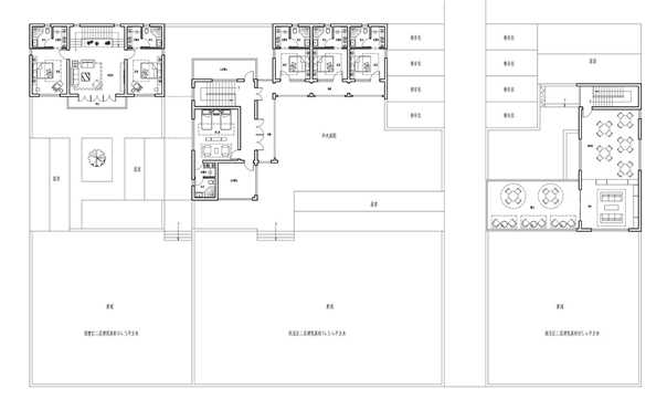
该民宿酒店建筑总面积为850平方米,整个基地面积是1160平方米。建筑面宽58米进深20米,建筑占地面积540平米,中式风格砖混结构,工程总造价约120万元。空间划分为自住区、民宿区、公共活动区三个部分,建筑以行列式方式排布。
建筑的每个部分独立存在,通过院门相连。自住区在整体布局的最西侧,最大程度保证了业主一家居住的私密性。民宿区和公共活动区相近,方便入住者使用。独立的院落和大面积的庭院让建筑保有不错的景观。行列式的排列方式让建筑的每间房间都有不错的朝向。
东侧的院落与西侧的两个院落中间保留了4米宽的人行小路。建筑二层大面积露台和咖啡区的设计,丰富了建筑的使用功能,为入住者提供了更多的娱乐休闲观景区。二层观景阳台的视角相比一层更好。登高望远,入住者能够欣赏周围的自然景观和当地特色建筑,让自己不虚此行。
建筑整体为新中式风格。白墙灰瓦与中式传统建筑的坡屋顶搭配,让历史厚重感扑面而来。坡屋顶没有多余装饰,简约的线条勾勒出干净的美。阳台选择木质竖向栏杆装饰,与庭院内的绿植相呼应。在形、神上满足中国传统审美习惯。
建筑的入户方式十分多样。院落与院落之间开有院门,每个院落保留有独立的出入口。多样的入户空间层次,传达了中式建筑的韵味精髓。
建筑群体高低起伏,不同的层高设计突出了建筑主体。明确的重点让整体建筑更有记忆点。南侧低矮的院墙将庭院的景色引入室内。镂空的花纹装饰将空间视觉上延伸增大。视线所及,庭院的优点体现得淋漓尽致。
外墙窗户的设计在选择上较为大胆。不同于大部分新中式的建筑,该项目采用不规则线条勾勒出窗户形状。大面积低矮的窗户让室内采光能力得到提升。
民宿设计中中心庭院必不可少。美景与绿地交融,室内外景色在眼中穿插而过,半私密性的赏景庭院与民宿房间的良好交流,使得入住体验更佳。中式花格即保留了东方传统的韵味美感也糅合了现代风格的时尚感。侧面看来,让建筑不单薄,层次更多。
室外躺椅正对庭院中的绿树,背靠院墙与房屋,夏天感受阴凉和微风,与业主聊一聊当地的人文趣事,民宿的特色优势不就在此嘛。这个案例是在我们数十个方案里精选的一套,可谓经典,给做民宿酒店设计的朋友一个参考吧。
本文所分享民宿设计设计相关内容转载至互联网,仅供参考学习,版权归原作者所有,如涉及侵权,请联系在线客服删除或纠正。
-
【品牌策划】 Brand planning
-
【室内设计】 Interior design
-
【软装设计】 Soft decoration design
-
【规划设计】 Planning design
-
【园林规划事务所5所】 Office 5 Landscape Planning Office
-
【商业综合体事务所6所】 Office 6 Commercial Complex Office
-
【酒店设计事务所1所】 Office 1 Hotel Design Office
-
【地产设计事务所2所】 Office 2 Realty Design Office
-
【别墅设计事务所3所】 Office 3 Villa Design Office
-
【软装设计事务所4所】 Office 4 Decoration Design Office