你的浏览器已禁用javascript,请启用javascript,否则网页将非正常运行!

五星级酒店设计案例分享:永嘉三江立体城希尔顿酒店设计

发布人:永嘉微房产 发布时间:2019.10.09

永嘉三江立体城希尔顿酒店建筑外观

永嘉三江立体城希尔顿酒店建筑外观

  一、区位分析:瓯江江畔,一线江景

永嘉三江立体城希尔顿酒店地处浙江温州永嘉县,坐落于瓯江江畔,基地由环江大道、长岙路和中村路环绕而成的片区组成,成为温州地区极具价值的土地之一。

永嘉三江立体城希尔顿酒店区位分析

项目旨在成为永嘉三江片区的地标,完善城市配套,提升城市竞争力。

永嘉三江立体城希尔顿酒店设计条件分析

  二、设计理念:城市层概念,打造永嘉三江片区地标

  该项目的设计思路和方案从城市和功能两个维度出发,希望这个建筑能体现地标性,成为温州瓯江北侧立体城的视觉焦点。同时体现滨江优势,充分考虑建筑与滨水环境的互动关系。

  1、城市维度

从城市设计中的城市层概念出发,在现有的政策条件下提出更有效的城市综合体设计策略;找出对于设计有赋型并优化空间组织的方法,在城市高度与垂直性的层面对现有的环境进行定量分析,结合造型,定义了一系列的室外平台,包括落客区平台、宴会前厅室外平台、屋顶花园、行政酒廊室外露台等,将建筑的功能向外扩展,从而得出能够回应城市扩展需求,能与城市系统紧密联系的方式。

永嘉三江立体城希尔顿酒店-城市维度分析

  通过分解体量回应不同层面的城市空间:消融酒店裙房、高层客房塔楼与公共空间的边界,创造多维空间及绿色的复合体。

  2、功能方面

这是一个酒店综合体,包含希尔顿五星级酒店和一个城市精品酒店。功能上结合当地人群需求,更加注重婚宴和会议功能。

永嘉三江立体城希尔顿酒店功能分析

  建筑直面一线瓯江,视线开阔,同时作为城市尺度的视觉焦点,保持完整的形象很重要。因此,整体建筑的塔楼体量简洁有力,体块清晰。在100米的高度,我们做了退台,与周边的百米居住区建筑体量相协调。在沿江街道尺度,把裙房体量切小,并营造一定的室外平台,增加和滨水景观的互动。

  三、建筑解析:140米高的堆叠式塔楼,纤细轻盈

建筑外观是一座细长、透明、140米高的堆叠式塔楼。我们通过体块切割咬合的方式,使堆叠的体量随着体积的增加而减小,从而降低了建筑的感知规模,呈现出一个纤细挺拔的塔楼形象。并且采用玻璃幕墙的立面,整体建筑给人一种轻盈放松的感觉,同时也让酒店客房的景观视野更加通透。

永嘉三江立体城希尔顿酒店建筑外观设计

永嘉三江立体城希尔顿酒店建筑外观设计

建筑体块沿南北方向打开,实现南北方向的视线通廊,将城市步行系统引入滨江景观带,增强基地与滨江的联系,同时为地块北侧的城市空间提供了一个景观和生态通道。

永嘉三江立体城希尔顿酒店建筑外观设计

  由于建筑所处的日照环境比较复杂:北侧均为已建住宅,酒店的三角形用地非常紧张,塔楼的位置也是唯一解,没有太多造型进退的余地。在实践过程中,我们只能通过各种切削,依据日照与采光需求,对空间形体做适当消减处理,减少对北侧建筑的影响,并最后确定塔楼的基本造型。

建筑立面幕墙的基本结构采用竖向的铝质幕墙,从材质原件的结构原理作为出发点,采用竖向的立面语言,增加建筑的竖向挺拔感,彰显酒店气质。部分横向装饰条与竖向组合的幕墙分格展示出大楼立面的对比及联系性,消解体量感,对抗周围高层视觉的压迫感。

永嘉三江立体城希尔顿酒店建筑外观设计

永嘉三江立体城希尔顿酒店建筑外观设计

塔楼立面设计是针对底部和上端分别进行相应的退让处理。底部退让使塔楼有相对宽敞的入口广场,使建筑的城市界面更有亲和力。

永嘉三江立体城希尔顿酒店建筑外墙设计

在后期,我们实现了灯光幕墙、室内设计一体化控制,最大程度的保证建筑设计的完成度。

主楼为酒店客房,建筑的高度遵从永嘉三江整体城市设计的指导原则,控制在140米,打造最佳的城市形象。鉴于周边是居住区和山体,从天际线的角度考虑,不宜太高,也不能太低。未来的三江,借助地理优势,将对标上海的陆家嘴,会有更多的商业综合体、超高层写字楼、豪宅等城市综合配套的建设。

永嘉三江立体城希尔顿酒店:裙房

裙房高度22米,主要功能有大堂、多功能厅、餐饮、康体及后勤配套等。酒店大堂落客区位于裙房二层,拥有开阔的江景视野,同时具有很好的昭示性和尊贵感。入口区汽车坡道、自动扶梯、潺潺流动的景观叠水,阶梯式花园,不仅增加建筑的仪式感,更彰显酒店的轻松度假氛围 。一层主要为酒店架空停车、后勤配套等。

永嘉三江立体城希尔顿酒店大门景观设计

永嘉三江立体城希尔顿酒店入口设计

  在室内布局方面,主要是充分利用江景资源,尽可能的保证大堂、宴会前厅、餐厅、健身泳池、客房等对景观有强烈诉求的功能都能享受瓯江的景色。

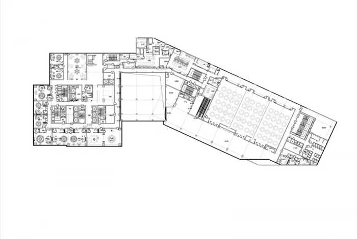
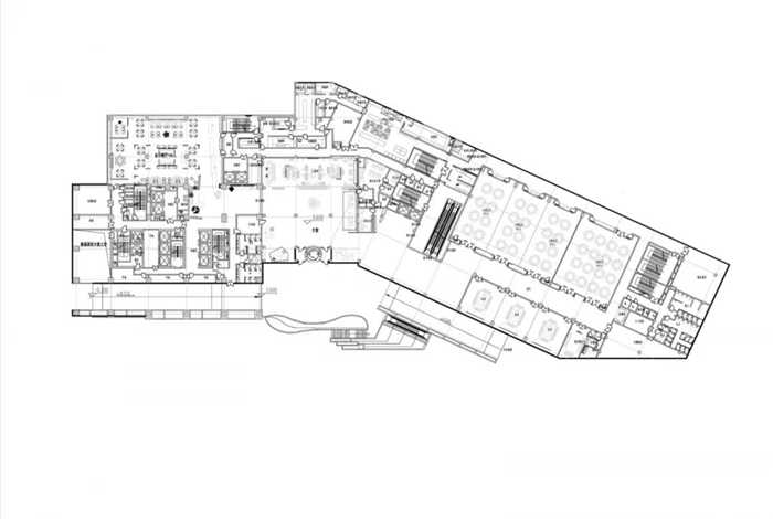
四、项目图纸

永嘉三江立体城希尔顿酒店项目图纸

永嘉三江立体城希尔顿酒店项目图纸

永嘉三江立体城希尔顿酒店项目图纸


  五、项目档案

  业主单位名称:永嘉万新商鼎置业有限公司

  项目地点:温州市永嘉县环江大道长岙路交叉口

  项目功能:酒店

  项目面积:85810平方米

  容积率:4.08

  设计时间:2017-2019

  施工时间:20195

  运营方信息:希尔顿酒店

分享这篇文章:
水木源创机构设置